imageimageimageimageimageimageimageimage
Исполнителей:1
Срок разработки:3 дня
taplink.cc/orlov_pro

Наши достижения

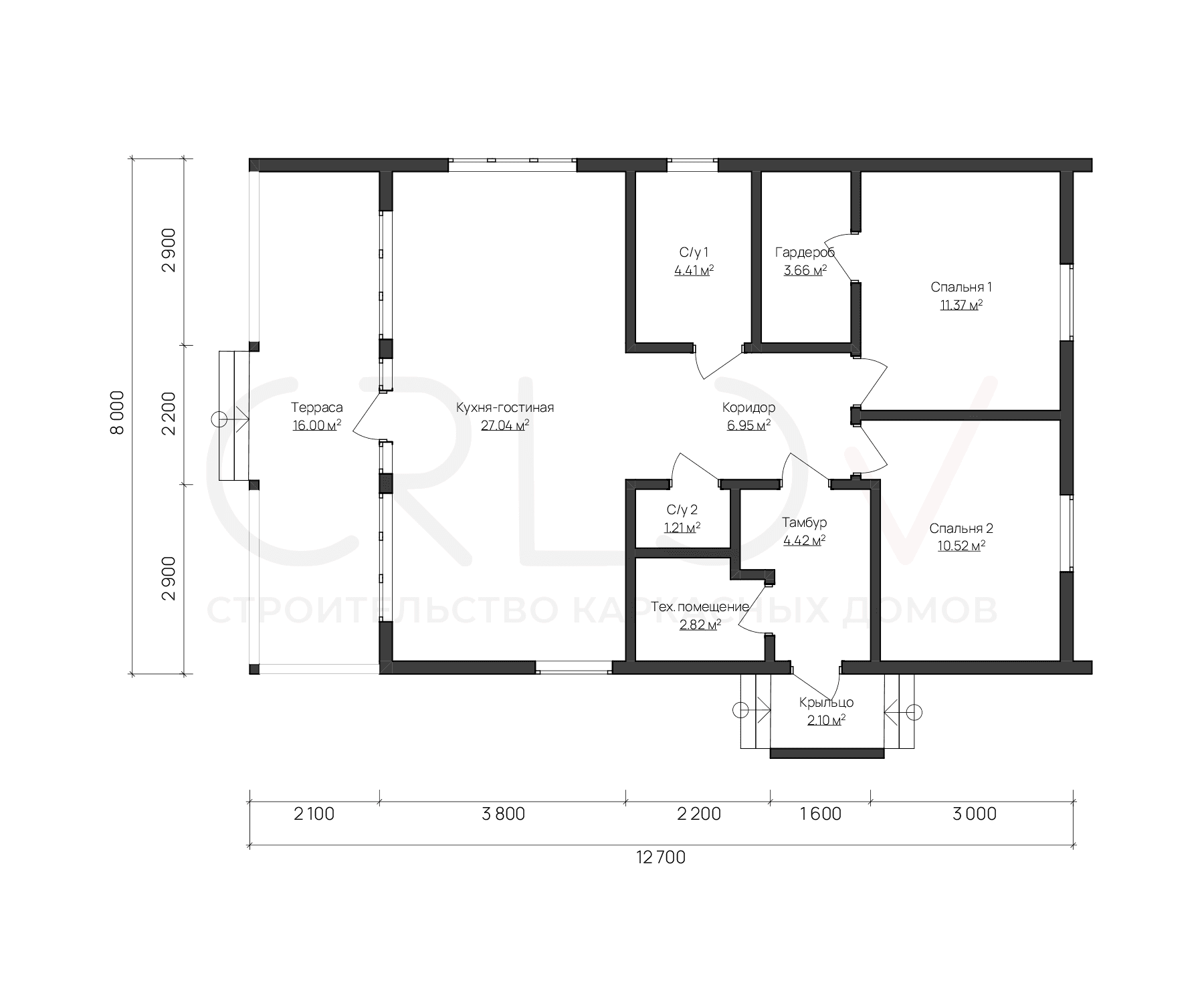
3D визуализация фирменного проекта для строительной компании «Орлов-Строй»


Описание проекта и технологий

Фирменный проект «Идиллия» с общими размерами 12.7х8м выполненный в различных цветовых решениях. Мы предлагаем разработку качественной 3Д визуализации для строительных компаний «под ключ». Доступная стоимость услуг, быстрое выполнение работ в максимально сжатые сроки.


Разработка 3Д визуализации под ключ любой сложности

Нуждаетесь в 3Д визуализации строительных проектов? Свяжитесь с нами для получения бесплатной консультации по всем вопросам. Контактная информация доступна на официальных ресурсах нашей студии.